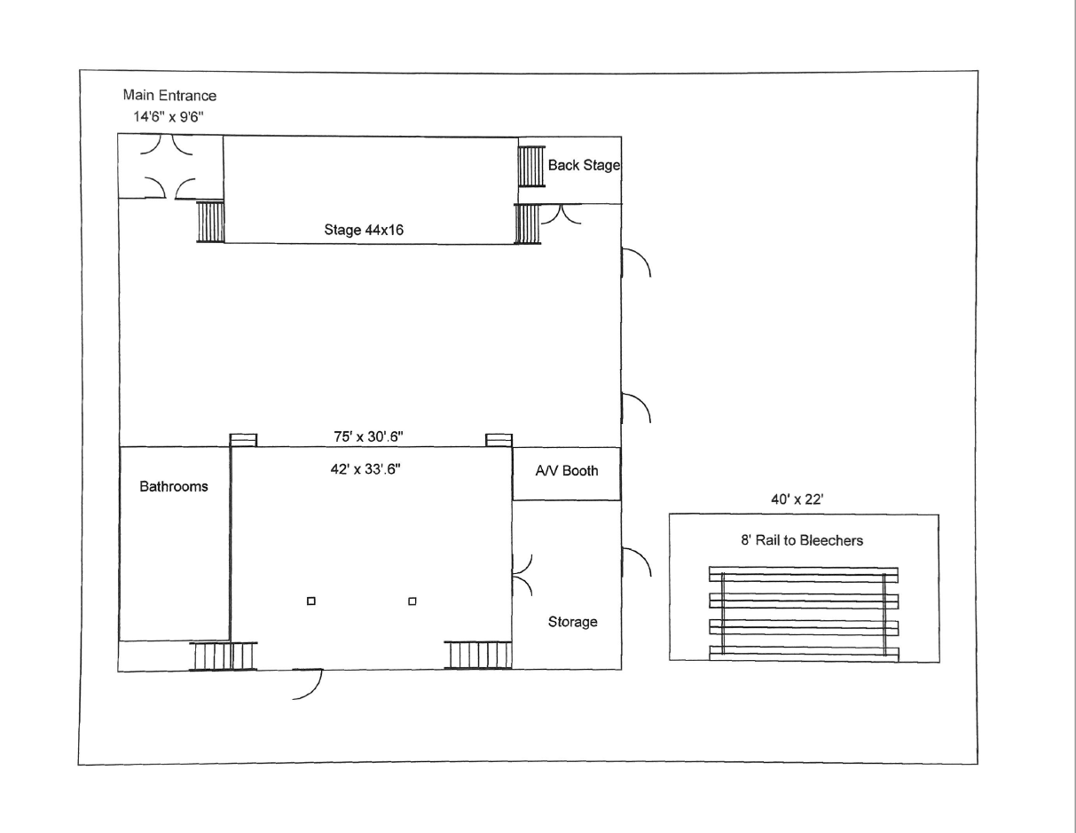
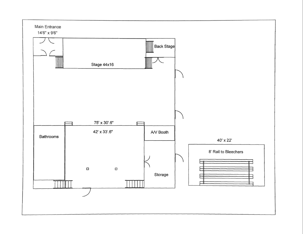
Venue Specifications
Rental of The Mane Room includes tables and chairs (see list below) at no additional charge. The room is also equipped with lighting and sound equipment, as well as a large projection screen and projector that are available to use for an additional fee.
RULES FOR USE OF The MANE Room
|
1. Your reservation will include up to 10 hours in the building, including preparation time, event time, and cleanup. Please have all materials and furnishings off premises at the conclusion of your contracted time. This includes additional lighting, sound and stage equipment, pipe and drape, and furniture. Items left behind and recovered later may be subject to charges up to $100 per business hour. 2. All parties and music must end by Midnight (12:00 AM) and the room must be completely cleaned and vacated by 2 AM unless approved by department chair. Failure to meet this requirement may result in charges up to $100 per hour. 3. Additional hours are available (if scheduling permits) for $50 per hour if agreed upon prior to the event. If added day of event this rate is doubled. 4. Rentals include the MANE ROOM, balcony, and adjoining kitchen area. No one is allowed in the Department of Entertainment Industry’s office areas and classroom spaces located behind the Mane Room. |
|
5. Please make sure host, caterer, florist, and any other vendors work within the scheduled access time and stipulations of this agreement. A copy can be sent to them upon request. |
|
6. If your reservation is canceled within 4 weeks of your scheduled event $100 of the deposit will not be refunded. If your reservation in canceled within 2 weeks of your scheduled event an additional $250 will not be refunded. |
|
7. The reservation party is responsible for cleaning messes in the facility, taking garbage to dumpster, removal of all food, and personal items that were brought into The MANE Room, and from the grounds following the event. You will be asked to provide name of person(s) responsible for cleanup. This person MUST be sober and check in with the Mane Room manager before leaving the venue. |
|
8. ALCOHOL IS NOT ALLOWED AT EVENTS IN THE MANE ROOM. Events in violation of this stipulation may be terminated immediately with no refund of rental fees or deposit(s). |
|
9. Decorations must be freestanding unless expressly permitted by the Mane Room Manager. NO tape, adhesives, screws, or fasteners of any kind are allowed to be applied to any part of the building. |
|
10. Absolutely NO SMOKING in The MANE Room or front entry way. |
|
11. Please make sure children are supervised at all times. The reservation party is solely liable for damages or injury caused by unsupervised children. |
|
12. For rentals spanning multiple days: All food must be properly stored or removed, and all trash must be taken out at the end of each night. 13. Any extra costs incurred for damages or special cleaning that goes beyond your deposit will be charged to the reservation party. |
|
14. Full payment of rental charges must be received 48 hours prior to scheduled access time of your event. |
|
15. The alley between the buildings is private and is not to be blocked or used as event space without prior approval. Vehicles blocking the alley may be towed.
|


Screen: 160" W x 100" H
Projector: Panasonic PT-RZ30 - Full HD video Projection at 3,500 Lumens

The Mane Room is equipped with many different types of lighting instruments. Including moving wash, beam, LED pars, and traditional ERS fixtures. This provides students with ample opportunity for experiential learning and our rental clients with an additional service to enhance their events.
![]() |
Console: Behringer Wing Main Speakers: 2 RCF ART-735 (flown), 1 RCF 8006-AS sub Monitors: 4 JBL MP412 and 1 Mackie ART-500 32 inputs from stage and 16 returns and mic package is big enough to cover anything from a small acoustic concert to a full band. |

Furniture that comes with room rental:
38 - 6' Classroom style tables (Seats 2 or 3 people each)
25 - 5' Round tables (Seats 8 people each)
9 - 6' Banquet style tables
3 - 8' Banquet style tables
250 - Stacking chairs

